QUADRA-N plafond alvéolaire multidirectionnel

Plafond alvéolaire pour un design unique

Le design unique du plafond ouvert QUADRA-N créé une ambiance dynamique. Ce plafond alvéolaire simple peau est disponible en plusieurs finitions et dimensions de cellules, ce qui permet la création d’ambiance unique.

  • L’intégration esthétique de spots ou LED Downlight possible.
  • Les systèmes techniques (tels que les climatiseurs et les sprinklers) peuvent être intégrés sans problème.

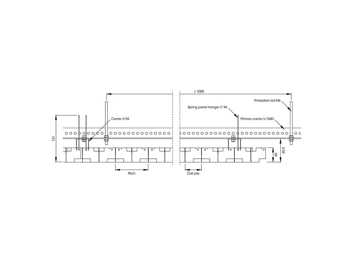
Données techniques

Dimensions

Épaisseur du matériau : 0,6 mm
Panneaux : 1200 x 600 mm
Hauteur : 40 mm
Cellule : 46,15 x 46.15 mm | 60 x 60 mm

Épaisseur du matériau : 0,6 mm
Panneaux : 1211,04 x 605,52 mm
Hauteur : 40 mm
Cellule : 33,64 x 33,64 mm

Épaisseur du matériau : 0,95 mm
Panel size : 1200 x 600 mm
Hauteur : 40 mm
Cellule : 33,33 x 33,33 mm | 60 x 60 mm
 

Matière et finition

Aluminium 0,6 mm et 0,95 mm
Lames : blanc, autres coloris RAL sur demande
 

Confort acoustique

Absorption acoustique : en combinaison avec l’absorbeur large bande dur-SONIC CUBE (αw = 0,50 ; NRC = 0,45)

Téléchargements