Le plafond multidirectionnel alvéolaire LIVA impressionne par son aspect homogène et aérien. Les lames en aluminium sont disposées à angle droit ou 45° les unes par rapport aux autres et peuvent être de différentes hauteurs ce qui donne un large choix de réalisations. Le plafond acquiert un aspect dynamique pour personnaliser l’espace.
LIVA plafond alvéolaire multidirectionnel
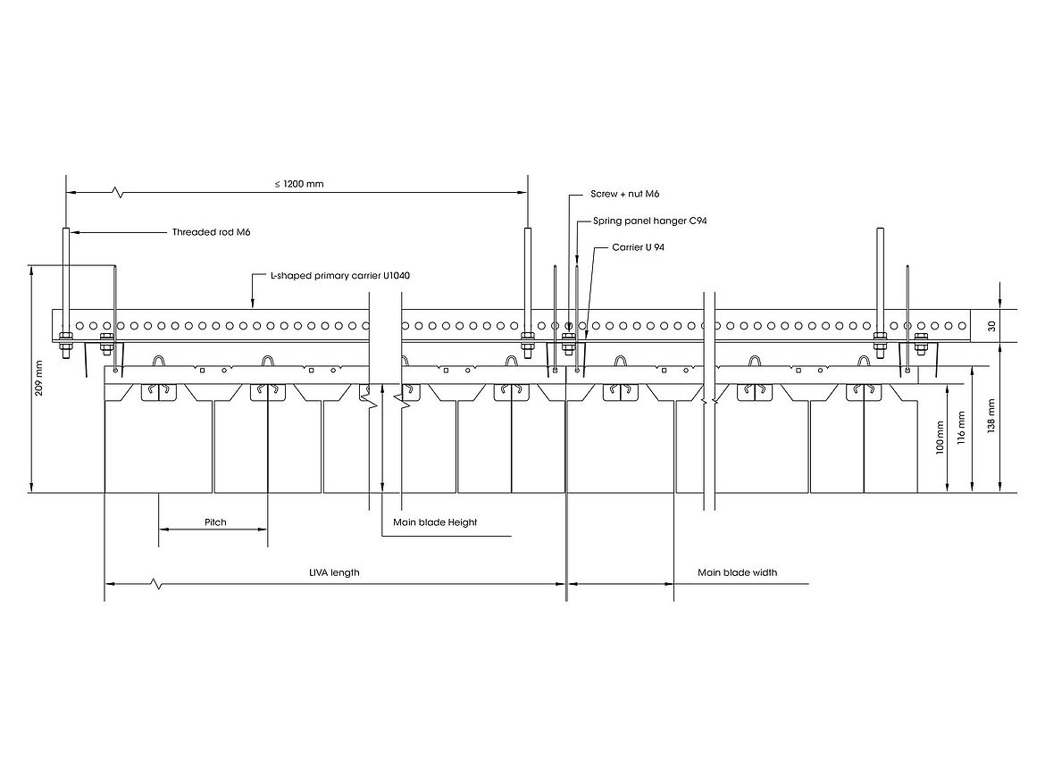
Dimensions
Largeur x hauteur : 98 x 100 mm, 150 mm, 200 mm
Pas: 100 mm, 120 mm
Matière et finition
Aluminium 0,8 mm
Lames : blanc, noir, autres coloris RAL sur demande
Confort acoustique
Absorption acoustique : en combinaison avec l’absorbeur large bande dur-SONIC TUBE (αw = 0,50 ; NRC = possible jusqu’à 0,45)
Ouverture, transparence, légèreté … une conception du design moderne que nous modélisons au travers de nos plafonds simple peau, double peau, linéaires et multidirectionnels.
La création d’ambiances n’a plus de limites dans vos projets avec nos systèmes d’éclairages intégrés et la complémentarité des plafonds métalliques du groupe durlum.
Retrouvez nos derniers projets de plafonds alvéolaires ici >
